| Поможем подобрать насос, звоните +7(499)399-36-08 или пишите shop@baymart.ru  | 
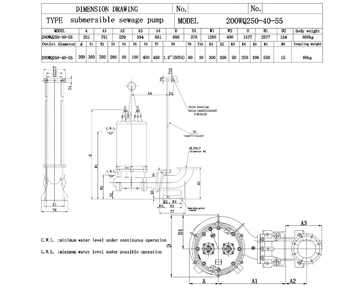
Канализационный НАСОС CNP WQ 250-40-55 | 
250 КУБ.М\ЧАС | 40 МЕТРОВ | 55 кВт | 
    Промышленный канализационный насос CNP серии WQ это современный тип погружных насосов для откачки сточных вод, с надежной проверенной временем конструкцией насосной части и системой защит электродвигателя, делает этот насос одним из лучших в своем классе.
Промышленные канализационные насосы WQ обладают высокой эффективность и могут эксплуатироваться в самых неблагоприятных условиях.
В конструкции насосной части применяется двухканальное полуоткрытое рабочее колесо, благодаря которому достигается:
- Высокий гидравлический КПД при перекачки большого объема загрязненных вод
 - Высокая устойчивость против засорений рабочего колеса
 - Стабильная работа без турбулентных завихрений
 
    В конструкции насосов WQ используется два торцевых уплотнения изготовленные из специальных износостойких материалов которые охлаждаются маслом и перекачиваемой жидкостью, обеспечивающие долгую и надежную эксплуатацию.
ПРИМЕНЕНИЕ:
 - Промышленные насосы для грязной воды можно использовать в жилищно-коммунальных хозяйствах, сельское хозяйство, промышленное строительство, горная промышленность.
 - Для отвод канализационных стоков, промышленных стоков, откачка затопленных котлованов, осушение болотистой местности и озер, отвод дренажных вод, откачка воды из шахт и много другое.
КОНСТРУКТИВНЫЕ ОСОБЕННОСТИ:
- Вентиляционный клапан в насосной части для автоматической откачки воздуха.
 - Электрокабель химически стойкий к сточным водам, установленный методом вулканизации, что предотвращает попадание жидкости в двигателя даже при повреждении крышки.
 - Электродвигатель с высоким КПД разработанный компанией CNP со степенью защиты 1РХ8 и классом изоляции- Р, предназначенный для длительного срока эксплуатации.
 - Охлаждение электродвигателя производится перекачиваемой жидкостью.
 
ЗАЩИТА:
Встроенный масляно-водяной датчик защиты отслеживает попадание воды или утечку масла, выведет сигнал на панель управления о неисправности торцевого уплотнения и остановит насос. Идет в комплекте ко всем промышленным канализационным насосам серии WQ мощностью выше 11 кВт, для насосов мощностью до 11 кВт возможно установить опционально при заказе насоса.
Термореле в обмотках статора в режиме реального времени отслеживает температуру обмоток и при превышении температуры выше нормы, даст команду на отключение насоса и сообщит о проблеме на шкаф управления, для канализационных насосов до 11 кВт отправка сообщения на шкаф управления не производится, насос просто отключается при перегреве.
| Технические характеристики | |
| Подача (м³/ч) | 250 | 
| Напор (м↑) | 40 | 
| Мощность (кВт) | 55 | 
| Сеть (V) | 380/400 В (трехфазный) | 
| Ток (А) | 106 | 
| Максимальный диаметр твердых частиц мм | 40 | 
| Присоединительные размеры | DN 200 | 
| Тип присоединения | Фланец | 
| Механизм насоса | Центробежный | 
| Погружной \ поверхностный | Погружной | 
| Материал рабочего колеса | Чугун | 
| Серия | CNP-WQ | 
| Длинна кабеля (метров) | 9 | 
| Рабочая температура жидкости °C | +1 +40 | 
| Максимальная плотность жидкости кг/м³ | 1200 | 
| Материал корпуса | Чугун | 
| Качество перекачиваемой жидкости | Грязная | 
| Тип насоса | Канализационный насос | 
| Гарантия | 2 | 
| Класс защиты | IPX8 | 
| Максимальная глубина погружения (метров) | 20 | 
| Датчик влажности | ДА | 
| Оборотов в минуту | 1480 | 
| Поплавковый выключатель | НЕТ | 
| Режущий механизм | НЕТ | 
| Тип оборудования | Насос | 
| Тип перекачиваемой жидкости | Вода | 
| Инженерная система | Водоотведение | 
Канализационный насос 200WQ250-40-55
-  
Стоимость по запросу
 - Запросить счет
 
- НасосыКанализационные насосыЗакрытое рабочее колесо
 - Производитель: CNP
 - Код Товара: 200WQ250-40-55AC(I)
 - Вес: 850 кг
 
СКИДКИ МОНТАЖНЫМ, ОПТОВЫМ КОМПАНИЯМ!  
    
 
  
Заказать расчет, купить Телефон +7(499)399-36-08 Почта shop@baymart.ru Мы будем рады Вам помочь!  | 
| Подбор аналогов Grundfos,KSB,Wilo | 














