| Поможем подобрать насос, звоните +7(499)399-36-08 или пишите shop@baymart.ru |
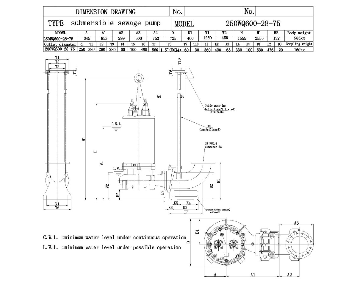
Канализационный НАСОС CNP WQ 600-28-75 |
600 КУБ.М\ЧАС | 28 МЕТРОВ | 75 кВт |
Промышленный канализационный насос CNP серии WQ это современный тип погружных насосов для откачки сточных вод, с надежной проверенной временем конструкцией насосной части и системой защит электродвигателя, делает этот насос одним из лучших в своем классе.
Промышленные канализационные насосы WQ обладают высокой эффективность и могут эксплуатироваться в самых неблагоприятных условиях.
В конструкции насосной части применяется двухканальное полуоткрытое рабочее колесо, благодаря которому достигается:
- Высокий гидравлический КПД при перекачки большого объема загрязненных вод
- Высокая устойчивость против засорений рабочего колеса
- Стабильная работа без турбулентных завихрений
В конструкции насосов WQ используется два торцевых уплотнения изготовленные из специальных износостойких материалов которые охлаждаются маслом и перекачиваемой жидкостью, обеспечивающие долгую и надежную эксплуатацию.
ПРИМЕНЕНИЕ:
- Промышленные насосы для грязной воды можно использовать в жилищно-коммунальных хозяйствах, сельское хозяйство, промышленное строительство, горная промышленность.
- Для отвод канализационных стоков, промышленных стоков, откачка затопленных котлованов, осушение болотистой местности и озер, отвод дренажных вод, откачка воды из шахт и много другое.
КОНСТРУКТИВНЫЕ ОСОБЕННОСТИ:
- Вентиляционный клапан в насосной части для автоматической откачки воздуха.
- Электрокабель химически стойкий к сточным водам, установленный методом вулканизации, что предотвращает попадание жидкости в двигателя даже при повреждении крышки.
- Электродвигатель с высоким КПД разработанный компанией CNP со степенью защиты 1РХ8 и классом изоляции- Р, предназначенный для длительного срока эксплуатации.
- Охлаждение электродвигателя производится перекачиваемой жидкостью.
ЗАЩИТА:
Встроенный масляно-водяной датчик защиты отслеживает попадание воды или утечку масла, выведет сигнал на панель управления о неисправности торцевого уплотнения и остановит насос. Идет в комплекте ко всем промышленным канализационным насосам серии WQ мощностью выше 11 кВт, для насосов мощностью до 11 кВт возможно установить опционально при заказе насоса.
Термореле в обмотках статора в режиме реального времени отслеживает температуру обмоток и при превышении температуры выше нормы, даст команду на отключение насоса и сообщит о проблеме на шкаф управления, для канализационных насосов до 11 кВт отправка сообщения на шкаф управления не производится, насос просто отключается при перегреве.
| Технические характеристики | |
| Подача (м³/ч) | 600 |
| Напор (м↑) | 28 |
| Мощность (кВт) | 75 |
| Сеть (V) | 380/400 В (трехфазный) |
| Ток (А) | 142 |
| Максимальный диаметр твердых частиц мм | 60 |
| Присоединительные размеры | DN 250 |
| Тип присоединения | Фланец |
| Механизм насоса | Центробежный |
| Погружной \ поверхностный | Погружной |
| Материал рабочего колеса | Чугун |
| Серия | CNP-WQ |
| Длинна кабеля (метров) | 9 |
| Рабочая температура жидкости °C | +1 +40 |
| Максимальная плотность жидкости кг/м³ | 1200 |
| Материал корпуса | Чугун |
| Качество перекачиваемой жидкости | Грязная |
| Тип насоса | Канализационный насос |
| Гарантия | 2 |
| Класс защиты | IPX8 |
| Максимальная глубина погружения (метров) | 20 |
| Датчик влажности | ДА |
| Оборотов в минуту | 1480 |
| Поплавковый выключатель | НЕТ |
| Режущий механизм | НЕТ |
| Тип оборудования | Насос |
| Тип перекачиваемой жидкости | Вода |
| Инженерная система | Водоотведение |
Теги: канализационный насос, Канализационный (фекальный) насос CNP
Канализационный насос 250WQ600-28-75
-
Стоимость по запросу
- Запросить счет
- НасосыКанализационные насосыЗакрытое рабочее колесо
- Производитель: CNP
- Код Товара: 250WQ600-28-75AC(I)
- Вес: 930 кг
СКИДКИ МОНТАЖНЫМ, ОПТОВЫМ КОМПАНИЯМ!
Заказать расчет, купить Телефон +7(499)399-36-08 Почта shop@baymart.ru Мы будем рады Вам помочь! |
| Подбор аналогов Grundfos,KSB,Wilo |




-graf-100x100.jpeg)









