| Поможем подобрать насос, звоните +7(499)399-36-08 или пишите shop@baymart.ru |
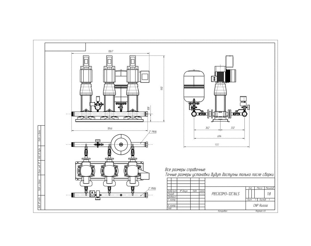
3-х Насосная установка повышения давления PBS3CDM3-12C16LS |
3 насоса | 6 куб.м\час | 71 метр | 3*1.1 кВт |
Насосные установки повышения давления серии PBS - это малогабаритные установки, собранные на базе вертикальных многоступенчатых насосов CDM компании CNP и установленных на общей рамной конструкции. Возможное количество насосов от 2 до 6.
Установки PBS предназначены для повышения и поддержания требуемого давления воды на выходе из установки вне зависимости от расхода потребления.
Возможности насосной установки PBS
Автоматический режим поддержания давления.
Установка PBS обеспечивает стабильное значение давления на выходе согласно заданного значения на панели управления, что позволяет добиться снижения скачков давления в системе потребителя.
Каскадный режим управления.
Каждый насос установки PBS оборудован индивидуальным преобразователем частоты, который позволяет осуществлять управление установкой в каскадном режиме. При малом расходе рабочей жидкости работает один насос, регулируя частоту вращения электродвигателя с помощью ПИД регулятора. При этом эффективность насоса и расход электроэнергии оптимизируется. В случае увеличения разбора воды, когда одного основного насоса недостаточно для поддержания требуемых параметров, в систему включается дополнительный насос.При этом первый насос вращается с максимальной частотой 50 Гц.Включение/выключение каждого последующего насоса происходит в зависимости от текущих параметров системы, что позволяет обеспечить необходимый уровень давления или потока при минимизации энергопотребления. В случае понижения нагрузки система останавливает насосы в обратном порядке.
Резервный насос
Встроенная автоматика насосной установки PBS имеет функцию резервного насоса. В случае выхода рабочего насоса из строя, резервный насос возьмет на себя работу станции.
Режим ожидания
Станция PBS автоматически определит отсутствие расхода с помощью интеллектуальной системы и плавно снизит обороты насоса до полного выключения. При появлении потребителей в системе, станция запуститься автоматически. Режим ожидания позволяет снизить потребление электроэнергии и уменьшить износ оборудования.
Скачать технический лист на установку PBS Вы можете в разделе документация| Технические характеристики | |
| Подача (м³/ч) | 6 |
| Напор (м↑) | 71 |
| Мощность (кВт) | 3*1,1 |
| Сеть (V) | 3*380-400В |
| Ток (А) | 7,2 |
| Присоединительные размеры | R2 |
| Тип присоединения | Муфтовое (резьбовое) |
| Количество ступеней | 12 |
| Механизм насоса | Центробежный, многоступенчатый |
| Материал рабочего колеса | AISI304 |
| Серия | PBS |
| Рабочая температура жидкости °C | -15 °С ~ +70 °С |
| Температура окружающей среды °C | 0 °С ~ +40 °С |
| Качество перекачиваемой жидкости | Чистая |
| Рабочее давление (бар) | 16 |
| Тип насоса | Насосная установка |
| Гарантия | 5 лет |
| Оборотов в минуту | 2900 |
| Тип перекачиваемой жидкости | Вода, техническая жидкость |
| Насосов (шт) | 3 |
| Инженерная система | Водоснабжение |
AIKON PBS3CDM3-12C16LS Установка повышения давления с тремя насосами
-
498221.55₽
664295.40₽
- Установки повышения давления
- Производитель: CNP
- Код Товара: PBS3CDM3-12C16LS
- Вес: 204 кг
СКИДКИ МОНТАЖНЫМ, ОПТОВЫМ КОМПАНИЯМ!
Заказать расчет, купить Телефон +7(499)399-36-08 Почта shop@baymart.ru Мы будем рады Вам помочь! |
| Подбор аналогов Grundfos,KSB,Wilo |













